Qualité de vie

Située dans la grande région métropolitaine, en plein cœur des Basses-Laurentides, Blainville sait se distinguer en offrant à ses citoyens une qualité de vie absolument exceptionnelle. Blainville, c’est une foule d’infrastructures, d’activités et d’événements à proximité de votre domicile, et ce, dans tous les domaines d’activités. Une offre de service globale qui répond aux besoins des familles, des jeunes et des moins jeunes!

INFORMATIONS

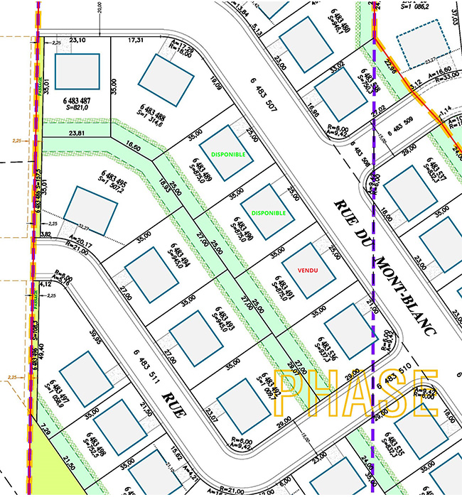
QUARTIER CHAMBÉRY

3 TERRAINS

Il ne reste plus que 2 terrains

ENSOLEILLEMENT

Votre cours plein sud

GRANDEURS

Terrains de 9500 p.c.

NOS TERRAINS

NOTRE MODÈLE

STYLE CONTEMPORAIN

Nous vous proposons le modèle de maison "Le Montpellier", un design moderne et fonctionnel. Toutefois, vous avez également la liberté de soumettre vos propres plans de construction. Si vous le souhaitez, notre architecte peut vous accompagner et vous conseiller dans la réalisation de votre projet sur mesure.

LE MONTPELLIER

4

2

2494 p.c.

LE MONTPELLIER

4 chambres – 2 SDB – 2494 p.c.

QUARTIER CHAMBÉRY

CONTACTEZ-NOUS

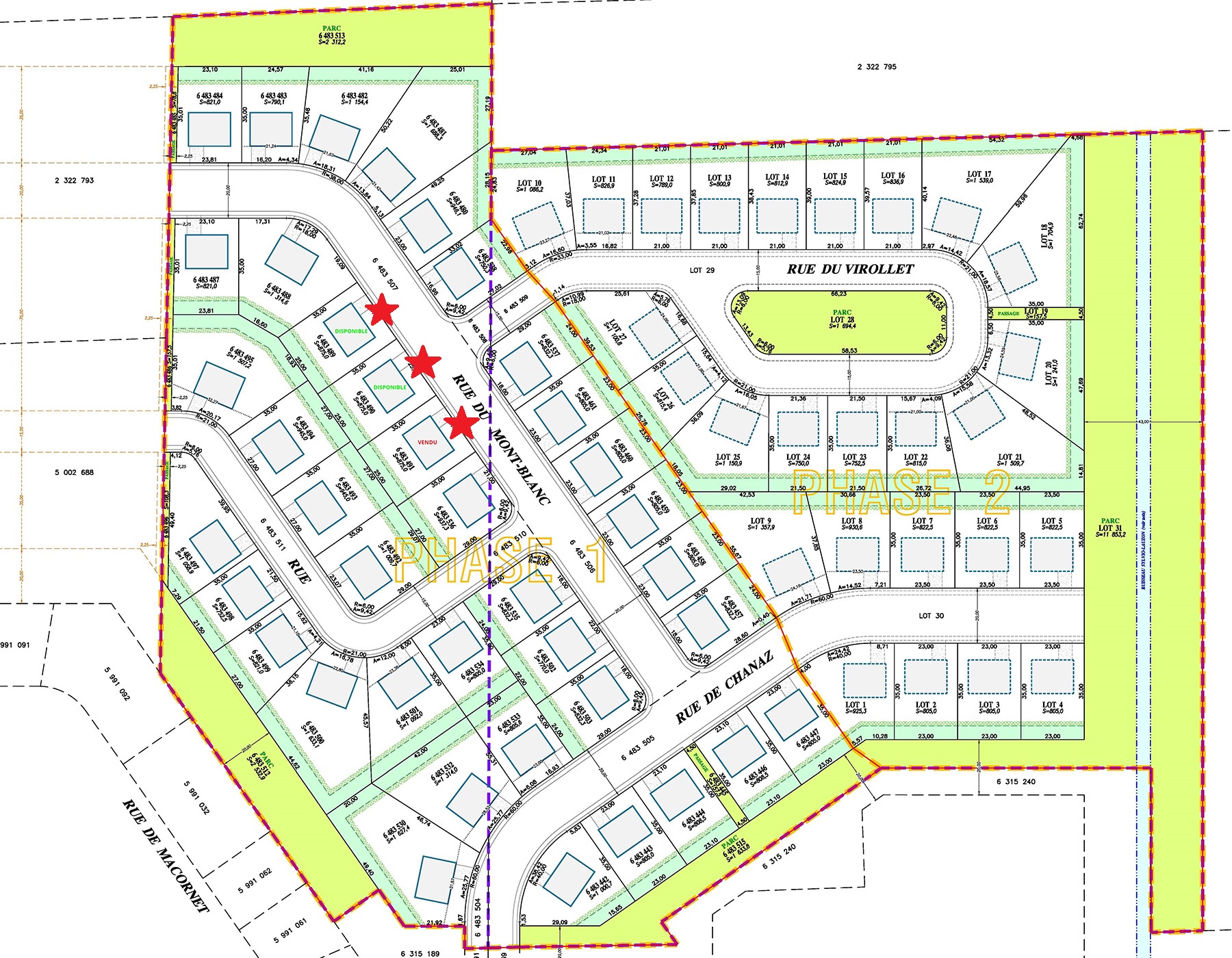
La rue du Mont-Blanc étant récente, elle n’apparaît pas encore sur Google Maps. Pour vous rendre aux terrains, utilisez la rue de Chanaz comme point de repère. Elle vous mènera directement à la rue du Mont-Blanc et à nos terrains.